Tarvin Online Logo Link

More Tarvin Housing Proposals

13th July 2016 @ 6:06am – by Tarvin Webteam
Back home  »  News  »  More Tarvin Housing Proposals

On the 7th of July Kerry Parr Organised a meeting in Tarvin to Discuss the views of local residents to the proposed Crabtree Development at the North West corner of the village.

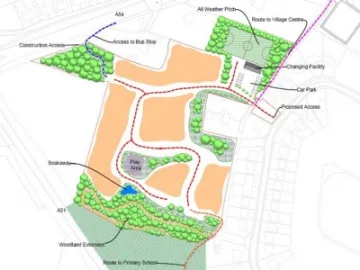
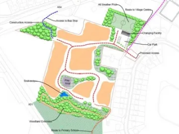
crabtree

(click to enlarge)

As you know on most issues Tarvinonline tries to provide information and comments from all points of view.

You can see the Crabtree Homes website covering the future Tarvin development here

TarvinOnline received on the 8th. July this summary of the meeting in a note to Residents and the next steps from Kerry Parr.
We reproduce this in full below.

"Thank you for attending our first residents meeting last night. It was a fantastic turnout of 65 people, all very passionate about trying to stop this Crabtree Homes development, but with all very measured and substantial reasons why it shouldn't go ahead.

It was also very positive that John Leather, one of our Local Councilors also attend the event. He has subsequently emailed me today with further advice, which is attached.

As promised, I have attached the presentation which I went through last night. Within it, I referred to a number of other documents, which I have also attached, or provided a link to below:

1. Email response from Councilor Hugo Deynem (attached)
2. Email advice from Councilor John Leather (attached)
3. Parish Council View on Future Development in Tarvin (attached)
4. Inspector's Report on Cheshire West and Chester Local Plan (Part One) Strategic Policies (attached – please read from paragraph 155 onwards)
5. Governments National Plan Policy Framework (read section 9)
https://www.gov.uk/government/uploads/system/uploads/attachment_data/file/6077/2116950.pdf
6. Government Briefing Paper on the role of the Greenbelt
http://researchbriefings.files.parliament.uk/documents/SN00934/SN00934.pdf


Public Exhibition This Weekend:

Please can everyone try and attend Crabtree Homes Ltd public presentation this coming weekend.
It will take place between 3pm and 7pm tomorrow, Friday 8th, and between 10am and 2pm on Saturday 9th in the Edna Rose Room at the Community Centre.
We need to ensure that the number of people objecting to the Development outweighs those in support of it, and also provide a list of our questions, concerns and objections.

We have to assume that they will provide forms for written feedback, that is best practice. But if not, we need to ask why, and how they propose to record our comments. Maybe even being along a written copy that you can leave with them.

Next Steps:

1. We need to form a smaller working party/committee. Please can you let me know whether you would like to be part of this, thank you.
2. We need some expert Highways and access advice, does anyone have any contacts in this industry we could approach?

Summary of objections/questions raised at last nights meeting (hopefully this may help with the points you raise with Crabtree Homes over the weekend?)

  • What background do Crabtree Homes have in housebuildong developments? It seems to be a relatively newly formed company.
  • The land is designated Greenbelt. CWAC currently has 7.8 years housing supply against a minimum requirement of 5 years. Tarvin has already met its housing commitment within the local plan. What "exceptional circumstances" are you presenting to justify building on Greenbelt land, when there appears to be no evidence of any more housing required in the village.
  • Access: can you provide further information on why CWAC Highways believes that access is acceptable? Have the road, the footpaths and the bends in the road on which the access road is proposed deemed to be wide enough and safe? What studies have been carried out specifically to Crossfields to ensure access is compliant. Or have CWAC just used generic UK guidelines, without specific surveys and studies of Crossfields.
  • Townfield Lane Ownership: The Lane is currently unadopted, how do you propose to gain permission to build you access road over it?
  • What would you do to stop new residents using Townfield Lane as a "short cut" access to the new development?
  • Heath Drive and Hockenhull Lane are already congested, particularly at school drop off and pick up times. Many residents park on the road, creating a single lane passing place. What assessment has been made as to the suitability of these roads as access to the development?
  • The sports pitch sits directly behind existing houses on Crossfields. In order for maximum use of the pitch, the Neighbourhood Plans indicates it needs to be floodlit and in use until at least 9pm. What consideratin has been made of the local residents to the light and noise pollution this will cause?
  • Who would own the sports pitch and therefore maintain it going forward?
  • Car park for the Sports pitch: They does not seem to be enough parking spaces provided. During sporting fixtures, Crossfields could become an overflow carpark.
  • Drainage: flooding is already an issue on Hockenhull Lane and parts of Crossfields, what are the drainage plans for the development
  • Sewers: what are the sewer waste plans for the development
  • Character: The development genuinely effects the character and heritage of the village. Townfield Lane is now the only existing "heritage" lane from the old village of Tarvin. The rest have already become residential streets.
  • Pressure on local services. What analysis has been made regarding the additional pressure on local services. We already know that one local rural doctors practice has been a 20% increase in patient population, and is struggling to cope.
  • Local Schools: what additional support/funding has been set aside to support the local Primary School with the increased numbers of pupils

Reading the email from John Leather, it is also very important to include your own "Material Considerations". Please make your objections personal to you, as well as the points raised above.

I think that covers everything for now. Good luck this weekend with your conversations with Crabtree. Please spread the word in any way you can to encourage people to object to the development at the drop in sessions.

I will inform you when the Parish Council meeting will take place to directly discuss this proposal further, and hopefully form a working committee asap.

Thank you again for your support last night, I think that it will be invaluable over the coming weeks and months.

Kindest regards
Kerry Parr

Get In Touch

TarvinOnline is powered by our active community.

Please send us your news and views.

Village Map

© 2025 TarvinOnline